

Pogledajte još:
Gradnja:
2026
Area:
70.55 m2
2
Kupatilo
2
Sobe
70.55 m2
Address:
Vojvode Tankosića 12Niš
Added:
15.02.26
Vojvode Tankosića 12 – Stan S9(trosoban)
2.250€ (cena bez PDV-a)
Trosoban – 3.sprat – severna i istočna orjentacija
Gradnja:
2023
Area:
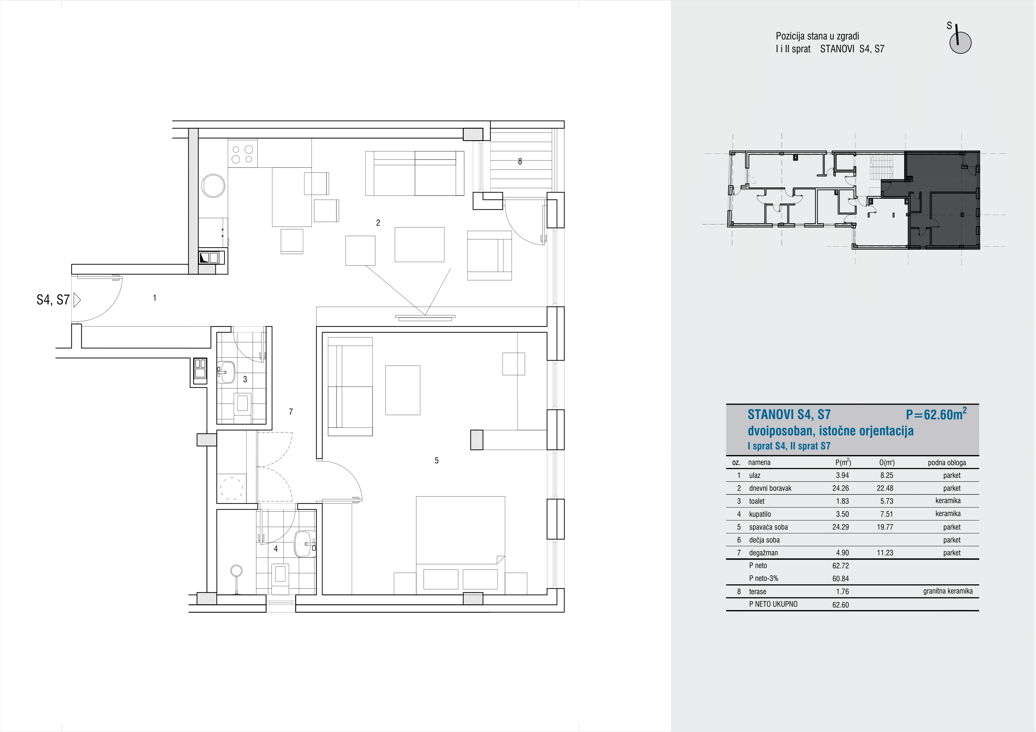
62.60 m2
2
Kupatilo
2
Sobe
62.60 m2
Address:
Kolubarska 18Niš
Added:
24.10.23
Kolubarska 18 – Stan S7 (dvoiposoban)
1.500€ (sa PDV-om)
Dvoiposoban – sprat II – istočna orjentacija
Gradnja:
2023
Area:
59.31 m2
2
Kupatilo
2
Sobe
59.31 m2
Address:
Ljube Nenadovića 5Niš
Added:
24.10.23
Ljube Nenadovića 5 – Stan S9 (dvoiposoban)
1.700€ (sa PDV-om)
Dvoiposoban – sprat III – južna, severna i zapadna orjentacija
