

Pogledajte još:
Gradnja:
2024
Area:
37.62 m2
1
Kupatilo
1
Sobe
37.62 m2
Address:
Studenička 11Niš
Added:
24.06.24
Studenička 11 – Stan S12 (jednoiposoban)
1.650€ (sa PDV-om)
Jednoiposoban – III sprat – jugo istočna orjentacija
Gradnja:
2024
Area:
46.52 m2
1
Kupatilo
1
Sobe
46.52 m2
Address:
Studenička 11Niš
Added:
24.06.24
Studenička 11 – Stan S11 (dvosoban)
1.650€ (sa PDV-om)
Dvosoban – III sprat – jugo istočna/severo istočna orjentacija
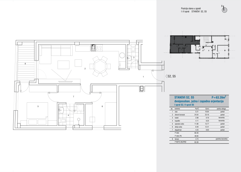
Gradnja:
2023
Area:
63.39 m2
2
Kupatilo
2
Sobe
63.39 m2
Address:
Kolubarska 18Niš
Added:
24.10.23
Kolubarska 18 – Stan S5 (dvoiposoban)
1.500€ (sa PDV-om)
Dvoiposoban – sprat II – južna i zapadna orjentacija
