

Pogledajte još:
Gradnja:
2023
Area:
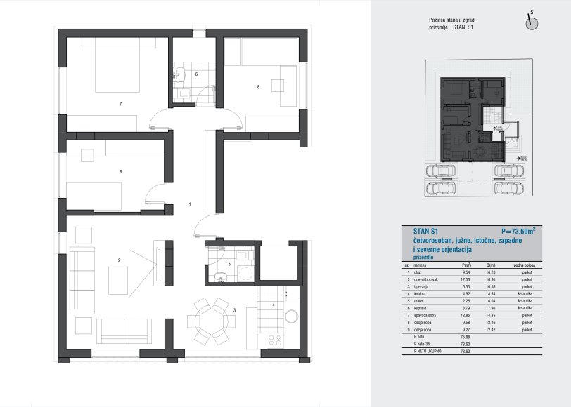
73.60 m2
2
Kupatilo
3
Sobe
73.60 m2
Address:
Dostojevskog 13Niš
Added:
07.06.23
Dostojevskog 13 – Stan S1 (četvorosoban)
1.600€ (sa PDV-om)
Četvorosoban – Prizemlje – južne, istočne, zapadne i severne orjentacije
Gradnja:
2023
Area:
59.31 m2
2
Kupatilo
2
Sobe
59.31 m2
Address:
Ljube Nenadovića 5Niš
Added:
28.05.23
Ljube Nenadovića 5 – Stan S3 (dvoiposoban)
1.700€ (sa PDV-om)
Dvoiposoban – sprat I – južna, severna i zapadna orjentacija
Gradnja:
2023
Area:
97.10 m2
2
Kupatilo
3
Sobe
97.10 m2
Address:
Dostojevskog 13Niš
Added:
07.06.23
Dostojevskog 13 – Stan S4 (četvorosoban)
1.650€ (sa PDV-om)
Četvorosoban – sprat III – južne, istočne, zapadne i severne orjentacije
